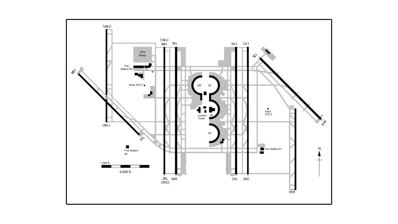
Dallas-Fort Worth International Airport operates 7 runways in total, primarily configured in a north-south orientation that maximizes airport capacity to handle operations. The runway system includes five major north-south parallel runways (17L/35R, 17C/35C, 17R/35L, 18L/36R, 18R/36L), and two northwest-southeast runways. Although the last two runways are used simultaneously when passenger traffic is high. The airport reopened Runway 17R/35L in May 2024 after rehabilitation, in a 9,275-foot order. Additionally, DFW is the only airport in the world with four operational runways covering more than 13,400 feet (4,000 meters).
DFW Airport Runway Map Layout
DFW has seven runways in total. The airport is primarily configured with five parallel north-south runways and two east-west runways, allowing different functions, especially during weather disruptions and traffic conditions.
|
Runway |
Length (in ft.) |
Surface |
|
13L/31R |
9,000 |
Concrete |
|
13R/31L |
9,300 |
Concrete |
|
17L/35R |
8,500 |
Concrete |
|
17C/35C |
13,400 |
Asphalt |
|
17R/35L |
13,400 |
Concrete |
|
18L/36R |
13,401 |
Concrete |
|
18R/36L |
13,400 |
Asphalt |
DFW Parallel Runway Configuration
Dallas-Fort Worth Airport has two sets of parallel runways located closely from north to south. It connects all five available terminals, supporting multiple arrivals and departures.
-
East Side terminals: DFW Terminal A, C, and E primarily serve runways 17R/35L, 17C/35C, and 17L/35R, respectively. Terminals A and C are directly adjacent to the center-east runways.
-
West Side Terminals: DFW Terminal B and D are on the western side of the airport; hence, they use 18L/36R and the central runway 17C/35C.
-
Dallas Airport International Terminal: Terminal D is on the northwest side, utilizing runways 18L/36R and 18R/36L.
Longest runway at DFW Airport
DFW Airport records its four parallel runways, 17C/35C, 17R/35L, 18L/36R, 18R/36L, as the longest, all almost 13,400 feet long. These are 200-meter-wide and handles 50% of departures through 17R/35L, after its reopening in 2024.

DFW Runway Map
The Runway Map of Dallas Airport provides an overview of all aligned runways, alongside the terminals. It also helps in searching for the areas of the airlines to complete the post-arrival and pre-departure facilities.
